fano, Pesaro e Urbino 61032
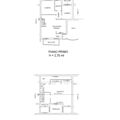
Fano, quartiere S. Orso, appartamento dal grande fascino e con finiture di buon livello. L'appartamento proposto si trova al primo piano della palazzina, oltre a piano superiore mansardato. Al piano di accesso troviamo: ingresso, grandissima e luminosa zona living e zona pranzo con angolo cucina visibile ma separato, balcone accessibile dal soggiorno. A completamento di questo piano, camera matrimoniale, seconda camera con balcone privato, ampio bagno. Dal soggiorno, salendo una ampia scala si arriva al piano superiore mansardato dove oggi troviamo un enorme open-space adibito a secondo soggiorno con camera, bagno e ripostiglio, da non trascurare il terrazzo panoramico presente in questo luminosissimo piano. Intervenendo con una separazione dell'ambiente, è possibile ricavare, in alternativa, 3 o 4 camere da letto, oppure se non si ha la necessità di sovradimensionare la zona notte, potrebbe essere interessante ricavare una camera, uno studio-cameretta, ed un secondo locale giorno da dedicare ad un area cinema-libreria e relax. Il tutto a seconda delle esigenze e dei gusti. Ampie zone di tutto l'appartamento hanno pavimenti in bellissimo parquet e sono dotate di impianto di aria condizionata. Il riscaldamento è autonomo. Interessante anche il garage di proprietà con dimensione che accoglie fino a 2 auto. Vicinanza ad ogni tipo di servizio, tutti raggiungibili a piedi, la pochissima distanza dalla città e dalla zona mare, in questo caso tutte raggiungibili anche senza l'uso dell'auto, rendono la proposta sicuramente da non sottovalutare e prendere in esame con una visita diretta da concordare con l'agenzia.
Scarica planimetria